Объявление
Новый дом у моря в Крыму в Севастополе - Продам прочее
Продам, предлагаю - частное лицо: Продам прочее, Украина, Симферополь и КрымКод: 112188 Создано: 08-08-2011 11:53
Цена: 180 000 USD $
|
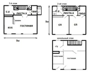
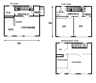
Новый современный коттедж в 200 метрах от берега с шикарным видом на море с любого этажа и участка. Общая площадь 200 кв.м. участок 7 соток граничит с территорией базы отдыха «Каравелла» г. Севастополь р-н мыса Фиолент. Дом - монолитно-каркасный, стены - ракушечник, утеплен пенопластом с акриловой фасадной штукатуркой, кровля - финская битумная черепица, панорамные окна- двойной стеклопакет, система водяных теплых полов, внутренняя отделка – гипсокартон, окраска, спутниковое ТВ , охранная сигнализация, эл-во - 3 фазы и др. 180000$. |
|
Картинки
Контактные данные
| Имя: |
Вадим |
|
| Контактный телефон: |
+380506537283 |
|
| Мобильный телефон: |
+380506537283 |


